TOP > ʪ·ï°ìÍ÷ > ÄÂÂß¾ðÊó

»ö̳½ê ÆüÊõ¥µ¥ó¥­¥å¡¼¥Ó¥ë Âçºå¥á¥È¥í¸æÆ²¶ÚÀþ ¿´ºØ¶¶±Ø ÅÌÊâ 6 ʬ

¿Íµ¤¤ÎÆîÁ¥¾ì ¢ö

´ðËܾðÊó

Ä¡¡ÎÁ¡Ê´ÉÍýÈñ¡Ë 50,600±ß¡Ê12,100±ß¡Ë
ÄÚñ²Á 8,560±ß¡Ê2,047±ß¡Ë
Êݾڶâ 10Ëü±ß
Îé¡¡¶â 0¥ö·î
»ÈÍÑÉôʬÌÌÀÑ
¡¡¡ÊÄÚ¿ô¡Ë
19.54­Ö¡Ê5.91ÄÚ¡Ë
¢¨ÄÂÎÁ¡¦´ÉÍýÈñ¤Ï¡¢¾ÃÈñÀǹþ¤ß¶â³Û¤Ç¤¹¡£

ÀßÈ÷¾ðÊó

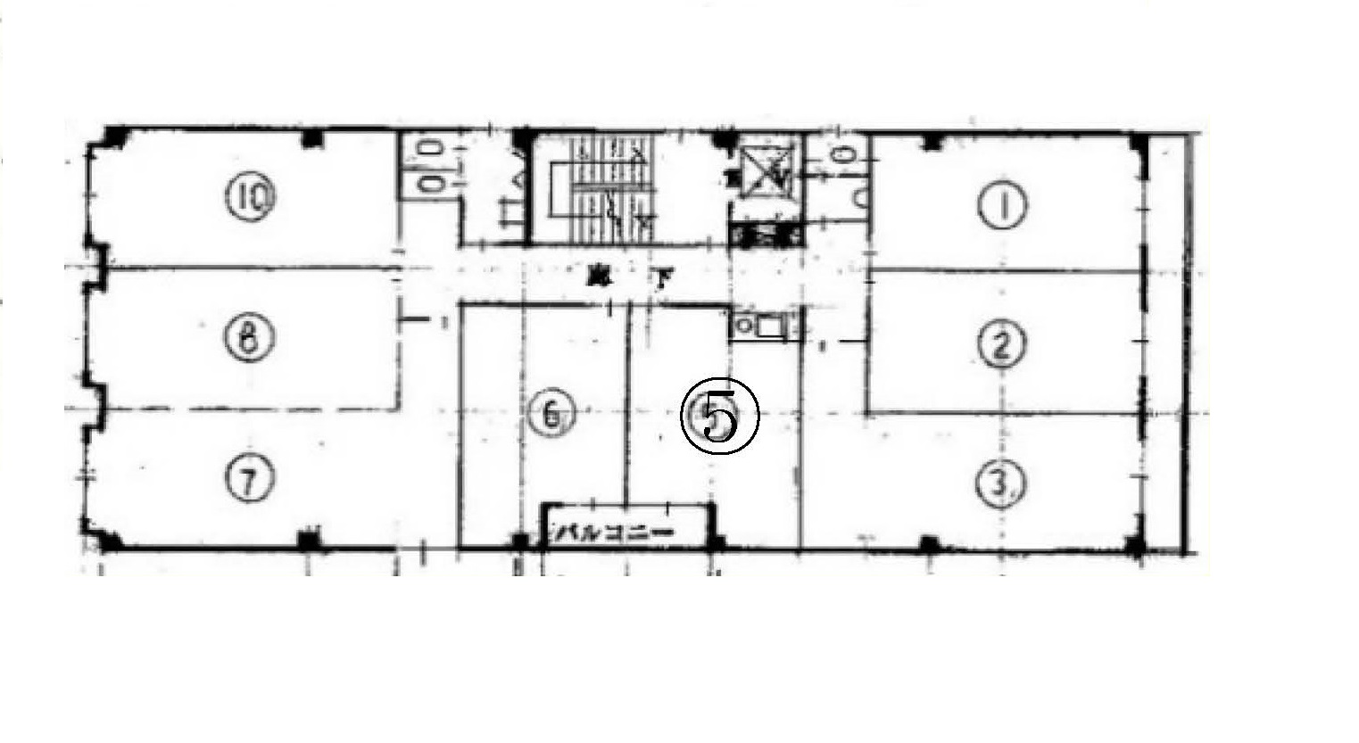
ʪ·ï³µÍ×

½êºßÃÏ ÂçºåÉÜÂçºå»ÔÃæ±û¶èÆîÁ¥¾ì2-10-21
ʪ·ï̾¾Î ÆüÊõ¥µ¥ó¥­¥å¡¼¥Ó¥ë ·úʪ¹½Â¤ Å´¹ü¤
ÀìÍ­ÌÌÀÑ 19.538­Ö ÉßÃÏÌÌÀÑ -­Ö
Ãó¼Ö¾ì¡ÊÊݾڶâ¡Ë -
½êºß³¬ / ³¬·ú 5³¬ / 6³¬·ú ÃÛǯ·î ¾¼ÏÂ47ǯ1·î
¼çÍ׺θ÷ÌÌ ¸½¶· / Æþµï»þ´ü ÆþµïÃæ / 2022ǯ2·î21Æü
ÀÜÆ»¾õ¶· - ¤½¤Î¾ɬÍ×·ÐÈñ
·ÀÌó´ü´Ö ÉáÄÌ·ÀÌó2ǯ¡¡ ´ÉÍý¡Ê´ÉÍý²ñ¼Ò¡Ë ½ä²ó
¼è°ú·ÁÂÖ Ãç²ð ¾ò·ï
ʪ·ïÅÐÏ¿Æü 2022ǯ02·î16Æü Àß¡¡È÷
ʪ·ïɾ²Á(´Ö¼è¤ê¡¦¥Ç¥¶¥¤¥ó) ʪ·ïɾ²Á(ÀßÈ÷¡¦µ¡Ç½À­Åù)
ʪ·ïɾ²Á(¥³¥¹¥Ñ) ʪ·ïɾ²Á(´Ä¶­±ÒÀ¸)
ʪ·ïɾ²Á(¸òÄÌ¡¦Î©ÃÏÅù)
¢¨Ëü°ìÀ®ÌóºÑÅù¤Î¾ì¹ç¤Ï¤´Î»¾µ²¼¤µ¤¤¡£

¥¢¥¯¥»¥¹¥Þ¥Ã¥×

Google Map¤òɽ¼¨

ʪ·ï³µÍ×

½êºßÃÏ ÂçºåÉÜÂçºå»ÔÃæ±û¶èÆîÁ¥¾ì2-10-21
ʪ·ï̾¾Î ÆüÊõ¥µ¥ó¥­¥å¡¼¥Ó¥ë
·úʪ¹½Â¤ Å´¹ü¤
ÀìÍ­ÌÌÀÑ 19.538­Ö
ÉßÃÏÌÌÀÑ -­Ö
Ãó¼Ö¾ì¡ÊÊݾڶâ¡Ë -
½êºß³¬ / ³¬·ú 5³¬ / 6³¬·ú
ÃÛǯ·î ¾¼ÏÂ47ǯ1·î
¼çÍ׺θ÷ÌÌ
¸½¶· / Æþµï»þ´ü ÆþµïÃæ / 2022ǯ2·î21Æü
ÀÜÆ»¾õ¶· -
¤½¤Î¾ɬÍ×·ÐÈñ
·ÀÌó´ü´Ö ÉáÄÌ·ÀÌó2ǯ¡¡
´ÉÍý¡Ê´ÉÍý²ñ¼Ò¡Ë ½ä²ó
¼è°ú·ÁÂÖ Ãç²ð
¾ò·ï
ʪ·ïÅÐÏ¿Æü 2022ǯ02·î16Æü
Àß¡¡È÷
ʪ·ïɾ²Á(´Ö¼è¤ê¡¦¥Ç¥¶¥¤¥ó)
ʪ·ïɾ²Á(ÀßÈ÷¡¦µ¡Ç½À­Åù)
ʪ·ïɾ²Á(¥³¥¹¥Ñ)
ʪ·ïɾ²Á(´Ä¶­±ÒÀ¸)
ʪ·ïɾ²Á(¸òÄÌ¡¦Î©ÃÏÅù)
¢¨Ëü°ìÀ®ÌóºÑÅù¤Î¾ì¹ç¤Ï¤´Î»¾µ²¼¤µ¤¤¡£

¤³¤Îʪ·ï¤ò¸«¤¿¿Í¤Ï¤³¤ó¤Êʪ·ï¤â¸«¤Æ¤¤¤Þ¤¹¡£

½»½ê ÄÂÎÁ ÌÌÀÑ
ÂçºåÉÜÂçºå»ÔÃæ±û¶è 22,000±ß 11.847­Ö ¾ÜºÙ

¤³¤Îʪ·ï¤ò¸«¤¿¿Í¤Ï¤³¤ó¤Êʪ·ï¤â¸«¤Æ¤¤¤Þ¤¹¡£

½»½ê ÄÂÎÁ ÌÌÀÑ
ÂçºåÉÜÂçºå»ÔÃæ±û¶è 22,000±ß 11.847­Ö ¾ÜºÙ

ʪ·ï¤ªÌ䤤¹ç¤ï¤»

¤ªÌ¾Á°¡Êɬ¿Ü¡Ë
Email¥¢¥É¥ì¥¹¡Êɬ¿Ü¡Ë
Ï¢ÍíÀè¡Êɬ¿Ü¡Ë
¤ªÌ䤤¹ç¤ï¤»ÆâÍÆ
¤½¤Î¾È÷¹ÍÅù
ÍøÍѵ¬Ìó

Âè1¾ò¡ÊÁí§¡Ë
ËÜÍøÍѵ¬Ìó¤Ï¡Ø»ö¶ÈÍÑÉÔÆ°»º¥ª¥ó¥é¥¤¥ó¡Ù¡Ê°Ê²¼¡¢¡ÖÅö¥µ¥¤¥È¡×¤È¤¤¤¦¡Ë¤ÎÍøÍѼÔÍͤΤ¿¤á¤Ë¡¢ Åö¥µ¥¤¥È¤ò¤´ÍøÍѤ·¤Æ¤¤¤¿¤À¤¯¤Ë¤¢¤¿¤Ã¤Æ¤Î½å¼é»ö¹à¤ä°ìÄê¤Î¥ë¡¼¥ë¤òÄê¤á¤Æ¤¤¤Þ¤¹¡£¡¡Åö¥µ¥¤¥È¤ÎÍøÍѼÔÍͤÏËÜÍøÍѵ¬Ìó¤ÎÆâÍÆ¤ò½½Ê¬¤ËÍý²ò¤·¡¢Ç¼ÆÀ¤ª¤è¤Ó¤´Î»¾µ¤Î¾å¡¢ ¤´ÍøÍѤ·¤Æ¤¤¤¿¤À¤­¤Þ¤¹¡£

Âè2¾ò¡ÊÅö¥µ¥¤¥È¤ÎÍøÍѤ˺ݤ·¤Æ¤ÎÃí°Õ»ö¹à¡Ë
Åö¥µ¥¤¥È¤Ï¡¢Åö¥µ¥¤¥È¤Î±ÜÍ÷¤Ê¤É¤ÎÍøÍѤò¸¶Â§¼«Í³¤Ë¹Ô¤Ã¤Æ¤¤¤¿¤À¤­¤Þ¤¹¡£¡¡Åö¥µ¥¤¥È¤òÍøÍѤ·¤Æ¤¤¤¿¤À¤¯¾å¤Ç¡¢Ëܵ¬Ìó¤ÎÆâÍÆ¤ò½½Ê¬¤Ë½å¼é ¤·¤Æ¤¤¤¿¤À¤¯É¬Íפ¬¤¢¤ê¤Þ¤¹¡£¡¡Åö¥µ¥¤¥ÈÍøÍѼÔÍͤÎÅö¥µ¥¤¥È¾å¤ÇȯÀ¸¤·¤¿¥È¥é¥Ö¥ë¤ä »³²¤Ë´Ø¤·¤Æ¤Ï¡¢Åö¼Ò¤Î¸Î°Õ¡¢²á¼ºÅù¤ò½ü¤­¡¢°ìÀÚÀÕǤ¤òÉ餤¤«¤Í¤ë¤³¤È¤ò»öÁ°¤Ë ¤´Î»¾µ¤¤¤¿¤À¤­¤Þ¤¹¡£

Âè3¾ò¡ÊÅö¥µ¥¤¥È¤ÎÆâÍÆ¡Ë
Åö¥µ¥¤¥È¤Ï¡¢Åö¥µ¥¤¥È¤Î¹­¹ð¤¹¤ë¾ðÊó¤ò¥¤¥ó¥¿¡¼¥Í¥Ã¥È¥æ¡¼¥¶¡¼¤¬ÌµÎÁ¤Ç±ÜÍ÷ ¤¹¤ë¤³¤È¤¬¤Ç¤­¤ë¾ðÊó¥µ¥¤¥È¤Ç¤¹¡£¡¡¼ç¤¿¤ë¹­¹ð¤ÏÉÔÆ°»º¾ðÊó¤È¤·¡¢ÉÔÆ°»º¾ðÊó¤ò¼ç¤Ë ±ÜÍ÷¤Ç¤­¤ë¤è¤¦¤Ê¥·¥¹¥Æ¥à¤ò¹½ÃÛ¤·¤Æ¤¤¤Þ¤¹¡£

Âè4¾ò¡ÊÅö¥µ¥¤¥ÈÍøÍÑ¼Ô¤ÎÆÏ½Ð»ö¹à¡Ë
Åö¥µ¥¤¥È¤Î¤´ÍøÍѤ˺ݤ·¤Æ¡¢°ìÄê¤Î¸Ä¿Í¾ðÊó¤òÆÏ½Ð¤¤¤¿¤À¤¯¾ì¹ç¤¬¤¢¤ê¤Þ¤¹¡£
Åö¥µ¥¤¥È¤Ë¥³¥ó¥¿¥¯¥È¤·¤Æ¤¤¤¿¤À¤¯ºÝ¤Ë¡¢ÍøÍѼÔÍͤλá̾¡¢½»½ê¡¢¶Ð̳Àè¡¢ Ï¢ÍíÀèÅù¤òÅö¥µ¥¤¥È¾å¤Î¥á¡¼¥ë¥Õ¥©¡¼¥à¤«¤éÆÏ½Ð¤·¤Æ¤¤¤¿¤À¤­¤Þ¤¹¡£

Âè5¾ò¡Ê¸Ä¿Í¾ðÊó¤Î´ÉÍý¡Ë
Åö¥µ¥¤¥È¾å¤Ç¡¢Á°4¾ò¤Î»ö¹à¤ÎºÝ¤ËÆþ¼ê¤·¤¿ÍøÍѼÔÍͤθĿ;ðÊó¤Ï¡¢¸Ä¿Í¾ðÊóÊݸîË¡ ¤Ë´ð¤Å¤­Å¬Àµ¤Ë´ÉÍý¤¤¤¿¤·¤Þ¤¹¡£

Âè6¾ò¡ÊÅö¥µ¥¤¥ÈÍøÍѼԤζػ߹԰١Ë
Åö¥µ¥¤¥È¤ò¤´ÍøÍѤ·¤Æ¤¤¤¿¤À¤¯¤ËºÝ¤·¤Æ¡¢ÍøÍѼÔÍͤ˲¼µ­¤Î¹Ô°Ù¤ò°ìÀڶػߤ·¤Æ¤¤¤Þ¤¹¡£
(1) Åö¥µ¥¤¥È¤Ë·ÇºÜ¤·¤Æ¤¤¤ë¾ðÊó¤ò̵ÃǤǻÈÍÑ¡¢Ê£À½¡¢¹­¹ð¡¢Âè»°¼Ô¤ËÄ󶡤¹¤ë¹Ô°Ù
(2) Åö¥µ¥¤¥È¤ËÂФ·¤Æ¤Î²áÅÙ¤ÊÈðëîÃæ½ý¹Ô°Ù
(3) Åö¥µ¥¤¥È¤ËÂФ·¤Æµõµ¶¤Î¸Ä¿Í¾ðÊó¤òÄ󶡤¹¤ë¹Ô°Ù
(4) Åö¥µ¥¤¥È¤Î±Ä¶È³èư¤ò˸¤²¤ë¹Ô°Ù
(5) Åö¥µ¥¤¥È¤ËÂФ·¤ÆÍ­³²¤Ê¥³¥ó¥Ô¥å¡¼¥¿¡¼¥×¥í¥°¥é¥àÅù¤òÁ÷¿®¤Þ¤¿¤Ï½ñ¤­¹þ¤à¹Ô°Ù
(6) Ë¡Îá¼ã¤·¤¯¤Ï¸ø½øÎɯ¤ËÈ¿¤¹¤ë¹Ô°Ù
(7) ¤½¤Î¾¡¢Åö¥µ¥¤¥È¤Î±¿±Ä¾å¡¢ÉÔŬÀÚ¤ÈȽÃǤµ¤ì¤ë¹Ô°Ù

Âè7¾ò¡Ê²ñ°÷ÅÐÏ¿¡Ë
Åö¥µ¥¤¥È¤Ï¡¢Åö¥µ¥¤¥È¤ÎÍøÍѼÔÍͤËÂФ·¤Æ°ìÄê¤Î¸Ä¿Í¾ðÊó¤òÄ󶡤·¤Æ¤¤¤¿¤À¤¤¤¿¾å¤Ç¡¢²ñ°÷ÅÐÏ¿¤ò¹Ô¤¦¤³¤È¤¬²Äǽ¤Ç¤¹¡£²ñ°÷ÅÐÏ¿¤Ï¡¢ÊÌÅÓ²ñ°÷µ¬Ìó¤Ë´ð¤Å¤­¡¢»ØÄê¥Õ¥©¡¼¥à¤Ç¹Ô¤Ã¤Æ¤¤¤¿¤À¤­¤Þ¤¹¡£ ²ñ°÷ÅÐÏ¿»þ¤ËÆþ¼ê¤·¤¿¸Ä¿Í¾ðÊó¤Ï¡¢¸Ä¿Í¾ðÊóÊݸîË¡¤Ë´ð¤Å¤­Å¬Àµ¤Ë´ÉÍý¤¤¤¿¤·¤Þ¤¹¡£

Âè8¾ò¡ÊID¤ª¤è¤Ó¥Ñ¥¹¥ï¡¼¥É¤Îȯ¹Ô¡Ë
Åö¥µ¥¤¥È¤Ï¡¢Åö¥µ¥¤¥È¤Î²ñ°÷ÍøÍѼÔÍͤËID¡¢¥Ñ¥¹¥ï¡¼¥É ¤ÎÄ󶡤ò¹Ô¤Ã¤Æ¤ª¤ê¤Þ¤¹¡£ID¥Ñ¥¹¥ï¡¼¥É¤Îȯ¹Ô¤Ï¡¢²ñ°÷ÅÐÏ¿»þ¤Ë¹Ô¤¤¤Þ¤¹¡£ ²ñ°÷¤Ï¡¢ËÜ¥µ¡¼¥Ó¥¹¤ÎÍøÍѤΤ¿¤á¤ËÊÀ¼Ò¤¬ÉÕÍ¿¤¹¤ë¥Ñ¥¹¥ï¡¼¥É¤Ë¤Ä¤¤¤Æ¡¢¼«¸Ê¤ÎÀÕǤ¤Ë¤ª¤¤¤Æ´ÉÍý¤¹¤ë¤â¤Î¤È¤·¡¢ÊÀ¼Ò¤Ï²ñ°÷¤Î¥Ñ¥¹¥ï¡¼¥É¤¬Âè»°¼Ô¤Ë»ÈÍѤµ¤ì¤¿¤³¤È¤Ë¤è¤Ã¤Æ²ñ°÷¤¬Èï¤ë»³²¤Ë¤Ä¤¤¤Æ¡¢°ìÀÚ¤ÎÀÕǤ¤òÉé¤ï¤Ê¤¤¤â¤Î¤È¤·¤Þ¤¹¡£

Âè9¾ò¡ÊÅö¥µ¥¤¥È¤Î°ì»þŪ¤ÊÃæÃǤª¤è¤ÓÃæ»ß¡Ë
Åö¥µ¥¤¥È¤Ï¡¢Ì±´Ö¤ÎÉÔÆ°»º²ñ¼Ò¡Ê°Ê²¼¡¢Åö¼Ò¡Ë¤¬±¿±Ä¤·¤Æ¤¤¤ë¹­¹ð¥µ¥¤¥È¤Ç¤¹¡£¡¡Åö¼Ò¤¬²¿¤é¤«¤Î·Á¤Ç±Ä¶È¤¬ÃæÃǤª¤è¤ÓÃæ»ß¤Ë¤Ê¤Ã¤¿¾ì¹ç¤Ë¡¢Åö¥µ¥¤¥È¤Î±Ä¶È¤¬ °ì»þŪ¤ËÃæÃǤª¤è¤ÓÃæ»ß¤Ë¤Ê¤ë¥±¡¼¥¹¤¬¤¢¤ë¤³¤È¤òÅö¥µ¥¤¥È¤ÎÍøÍѼÔÍÍ¤Ë¤Ï »öÁ°¤Ë¤´¾µÂú¤·¤Æ¤¤¤¿¤À¤­¤Þ¤¹¡£

Âè10¾ò¡ÊÅö¥µ¥¤¥È¤Î½ªÎ»¡Ë
Åö¼Ò¤Ï¡¢°ìÄê¤Î´ü´Ö¤òÀߤ±¤ÆÅö¥µ¥¤¥È¤¬½ªÎ»¤¹¤ë»Ý¤ò¹ðÃΤ·¡¢Åö¥µ¥¤¥È¤Î¥µ¡¼¥Ó¥¹¤ò ½ªÎ»¤¹¤ë¤³¤È¤¬¤Ç¤­¤Þ¤¹¡£¡¡Åö¥µ¥¤¥È¤ÎÍøÍѼÔÍͤˤϡ¢Åö¥µ¥¤¥È¤Î¤´»ÈÍѤ˺ݤ·¤Æ¡¢Ëܾò¤ÎÆâÍÆ¤ò»öÁ°¤Ë¤´¾µÂú¤·¤Æ¤¤¤¿¤À¤­¤Þ¤¹¡£

Âè11¾ò¡ÊÀÕǤÈϰϡË
Åö¼Ò¤Ï¡¢Åö¥µ¥¤¥È¤Ë·ÇºÜ¤µ¤ì¤Æ¤¤¤ë¾ðÊó¤Ë´Ø¤·¤Æ¡¢¤¤¤«¤Ê¤ëÊݾڤâ¹Ô¤¤¤Þ¤»¤ó¡£
Åö¥µ¥¤¥È¤Ë·ÇºÜ¤µ¤ì¤Æ¤¤¤ë¾ðÊó¤Ë´Ø¤·¡¢¸í¤Ã¤¿¾ðÊó¤ä¸Å¤¤¾ðÊ󤬤¢¤ë¤³¤È¤òÁ°Äó¤Ë ÍøÍѼÔÍͤËÅö¥µ¥¤¥È¤Î¥µ¡¼¥Ó¥¹¤ò¤´ÍøÍѤ·¤Æ¤¤¤¿¤À¤­¤Þ¤¹¡£¡¡¾°¡¢Åö¼Ò°Ê³°¤Î²ñ°÷¤¬ ·ÇºÜ¤·¤Æ¤¤¤ë¾ðÊó¤ò²¼¤Ë¡¢ÍøÍѼÔÍͤ¬²¿¤é¤«¤Î»³²¤òÈï¤Ã¤¿¾ì¹ç¤Ë¤ÏÅö¼Ò¤Ï °ìÀÚ¤ÎÀÕǤ¤òÉé¤ï¤Ê¤¤¤â¤Î¤È¤·¡¢ÍøÍѼÔÍͤϤ³¤ì¤ËƱ°Õ¤·¤¿¤â¤Î¤ÈÃפ·¤Þ¤¹¡£

Âè12¾ò¡Ê´É³íºÛȽ½ê¡Ë
Åö¥µ¥¤¥È¤Ë´Ø¤¹¤ëʶÁè¤Ï¡¢ÂçºåÃÏÊýºÛȽ½ê¤òÂè°ì¿³¤ÎÀì°Ū¹ç°Õ´É³íºÛȽ½ê¤È¤·¤Æ½èÍý¤¹¤ë¤â¤Î¤È¤¤¤¿¤·¤Þ¤¹¡£

Âè13¾ò¡ÊÌä¹ç¤»Àè¡Ë
Åö¥µ¥¤¥È¤ÎÌ䤤¹ç¤ï¤»Àè¤Ï¡¢²¼µ­¤Î¤È¤ª¤ê¤È¤¤¤¿¤·¤Þ¤¹¡£

³ô¼°²ñ¼ÒSP¥Ñ¡¼¥È¥Ê¡¼
±¿±ÄÁë¸ý

PAGE TOP